Show All Photos (51 images)
5230 44 Avenue, Spirit River, Alberta T0H 3G0
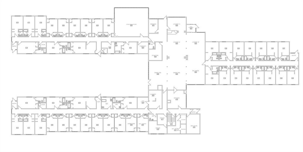
22,177 sq ft MLS® A2273553
Property Details
Property Type Commercial — Multi Family
Square Footage 22,177 sq ft
($45/sq ft)
Lot Size 2.32 acres
Year Built 1960
Zoning R4
County Spirit River No. 133, M.D. of
Building & Infrastructure
Heating Boiler
Media & Tours
Location
Walkability & Transit
33
Walk Score
Car-Dependent
23
Bike Score
Somewhat Bikeable
—
Transit Score
No transit data
Scores provided by Walk Score. Walk Score measures walkability on a scale of 0–100.
What's Nearby
Data provided by Google. Distances are approximate straight-line distances.
Listed On
Dec 2, 2025
Days on Market
111
Photos
51
Listing courtesy of Sutton Group Grande Prairie Professionals
The data is deemed reliable but is not guaranteed accurate by Pillar 9.
Copyright 2026 by Pillar 9™. All Rights Reserved.
Total Price
$999,900
$45/sq ft Listed 111 days ago


