Show All Photos (7 images)
17, 715034 Range Road 73, Rural Grande Prairie No. 1, County of, Alberta T8X4L4
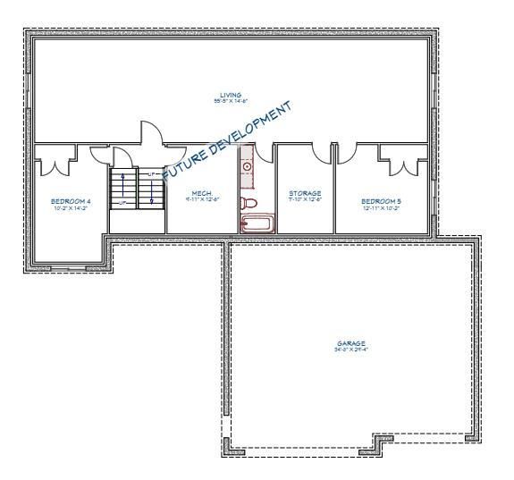
3 Beds 2 Baths MLS® A2287148
Property Details
Property Type Residential — Detached
Bedrooms 3
Bathrooms 2
Lot Size 2.87 acres
Year Built 2026
Subdivision Lakeview Meadows
Zoning CR-2
County Grande Prairie No. 1, County of
Building & Infrastructure
Heating High Efficiency,Forced Air,Natural Gas
Cooling None
Garage Yes
Water Shared Well
Sewer Septic System
Lot Features
See Remarks
Community Features
None
Location
Walkability & Transit
0
Walk Score
Car-Dependent
24
Bike Score
Somewhat Bikeable
—
Transit Score
No transit data
Scores provided by Walk Score. Walk Score measures walkability on a scale of 0–100.
What's Nearby
Data provided by Google. Distances are approximate straight-line distances.
Listed On
Feb 17, 2026
Days on Market
35
Photos
7
Listing courtesy of Grassroots Realty Group Ltd.
The data is deemed reliable but is not guaranteed accurate by Pillar 9.
Copyright 2026 by Pillar 9™. All Rights Reserved.
Total Price
$900,000
Listed 35 days ago


